凯时网站

电动矩形百叶式调节蝶阀

电动矩形百叶式调节蝶阀
  • 销售:021-32051999
  • 销售:021-32050777
  • 传真:021-66099555

详情介绍

  • 产品介绍
  • 服务承诺
  • 订货流程

电动矩形百叶式调节蝶阀配置电动执行机构广泛应用于建材、冶金、矿山、电力等生产过程,能自动控制或手动控制调节管路中介质流量,蝶板采用百叶多轴体结构,流体均匀,启闭力矩小,动作灵敏,性能可靠。

阀体材料:碳钢、不锈钢

主要技术参数


公称压力PN

0.005MPa

适用温度

-30~350℃

适用介质

粉尘、含尘气体

泄漏量

≤3%

阀门启闭时间

25秒

输入信号(直流)

Ⅱ型0~10mA,Ⅲ型4~20mA

输入通道

3个

输入电阻

Ⅱ型200Ω,Ⅲ型250Ω

电源电压

220V±20V,50HZ

介质流速

≤25m/s


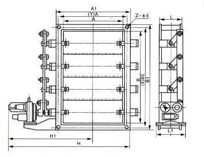
主要外形连接尺寸


A×B

A1×B1

A2×B2

L

L1

H1

H

b

Z-Фd

X

Y

输线

执行器

Wt/Kgs

320×180

375×105

400×240

180

245

580

735

8

16-14

5

3

2

DKJ-210

184

320×250

375×395

400×330

180

245

625

825

8

16-14

5

3

2

DKJ-210

194

400×200

455×255

500×330

200

245

610

805

8

16-18

5

3

2

DKJ-210

215

400×320

455×375

500×420

200

245

870

915

8

16-18

5

3

2

DKJ-210

263

500×200

555×255

600×300

220

245

610

805

8

16-18

5

3

3

DKJ-210

272

500×400

555×455

600×500

220

245

370

915

8

20-18

5

5

3

DKJ-210

292

630×320

685×375

730×420

220

245

610

805

10

20-18

7

3

3

DKJ-210

322

630×400

685×455

730×500

220

245

710

995

10

24-18

7

5

3

DKJ-210

354

800×400

855×455

900×500

240

300

670

945

10

24-18

7

5

4

DKJ-310

443

800×630

855×685

900×730

240

300

710

995

10

28-18

7

7

4

DKJ-310

590

1000×500

1070×570

1130×830

260

300

790

1075

10

24-23

7

5

4

DKJ-310

640

1000×800

1070×870

1130×930

260

300

905

1270

10

28-23

7

7

4

DKJ-310

770

1250×630

1320×700

1380×760

280

300

1005

1505

10

32-23

9

7

5

DKJ-310

790

1250×1000

1320×1070

1380×1130

280

300

1105

1705

10

32-23

9

7

5

DKJ-310

920

1400×800

1470×870

1530×930

300

385

1075

1575

10

36-23

11

7

5

DKJ-410

940

1400×1250

1470×1320

1530×1380

300

385

1300

2025

10

40-23

11

9

5

DKJ-410

1240

1600×1000

1670×1070

1730×1130

320

385

1175

1775

10

36-23

11

7

5

DKJ-410

1540

1600×1250

1670×1320

1730×1380

320

385

1300

2025

10

40-23

11

9

5

DKJ-410

1680

1800×1250

1870×1320

1930×1380

340

420

1450

2175

10

44-23

13

9

6

DKJ-510

1846

1800×1400

1870×1470

1930×1530

340

420

1525

2325

10

48-23

13

11

6

DKJ-510

1953

2000×1250

2070×1320

2130×1380

360

420

1450

2175

10

48-23

15

9

6

DKJ-510

2170

2000×1800

2070×1670

2130×1730

360

420

1620

2520

12

52-23

15

11

6

DKJ-510

2392

2500×1800

2570×1870

2630×1730

420

450

1695

2595

12

56-23

17

11

8

DKJ-610A

2740

2500×2000

2570×2070

2630×2130

420

450

1895

2995

12

64-23

17

15

8

DKJ-610A

2801

2800×2500

2870×2570

2930×2630

440

450

2145

3195

12

72-23

19

17

8

DKJ-610A

3118

3200×2800

3270×2870

3330×2930

480

480

2325

3825

12

80-23

21

19

10

DKJ-610

3535

3600×3200

3670×3270

3730×3330

520

480

2525

4225

12

88-23

23

21

10

DKJ-610

4018

4000×3600

4070×4670

4130×4730

560

480

2725

4825

12

100-23

27

23

10

DKJ-610

4532


良好的品质、优良的服务 凯时网站为你创造更多价值!

“凯时网站阀门”的期望,不断提升服务质量,精益求精,“真诚的服务”是“凯时网站”永恒的主题。“凯时网站”严格按照IS09001-2000 质量体系认证要求,质量严格把关, 责任到人,确保生产、销售、服务的健康运行。加强与用户沟通,竭诚为广大客户提供优良产品,贴心服务。特此我厂做出以下承诺:

产品标准:

产品严格按照中国GBHG 标准和美国API等标准设计、制造、验收。密封面硬度达到国家规定要求,宽度超过国家标准。

售前服务:

产品介绍,技术交流,非标产品设计,疑难解答。

售中服务:

守信合同,及时供货,随时保持与客户联系。 对特殊或复制的产品,我厂安排技术人员对用户进行产品使用、故障排除

售后服务:

1、“凯时网站”牌产品品质期为自出厂起12个月,实行“三包”服务(包退、包换、保修)。

2、产品在使用中我厂定期组织技术、质检人员进行访问,征询用户对产品质量、 使用状况、改进意见等方面的反馈, 以便进一步提高产品质量。

3、对用户投诉质量问题,快速作出反应,售后服务人员在24-36小时(省外48小时)赶赴现场。

4、对售后服务,要求用户填写服务后的质量反馈信息表,并作出鉴定意见,以便提高凯时网站的服务质量。

1、客户如对产品有特殊要求,须在订货合同中提供以下说明:

a、结构长度;

b、连接形式;

c、公称直径、全通径、缩径、管道尺寸;

d、运行介质及温度、压力范围;

e、试验、检验标准及其他要求

2、本厂可根据客户特定要求配置各类驱动装置。

3、如由客户提供确定的阀门类型和型号时,客户应正确说明其型号的含义和要求,在供需双方理解一致的条件下签订合同。

4、期货、订货的客户请先来电函详细告诉所需的阀门型号、规格、数量以及交货时间、地点,并按总的30%预定金或全额货款及时汇入我厂帐户,其余货款待发货前汇入,以便及时安排发货。

订单流程:

1、客户采购清单传真至021-33872143,或来电咨询 021-33872141

2、收到客户采购清单,为客户提供阀门型号选型与报价(价格清单)。

3、具体商定:交货期、特殊要求等事宜。

订货须知:

1、客户如对产品有特殊要求,须在订货合同中提供以下说明:

a、结构长度;

b、连接形式;

c、公称直径、全通径、缩径、管道尺寸;

d、运行介质及温度、压力范围;

e、试验、检验标准及其他要求

2、本厂可根据客户特定要求配置各类驱动装置。

3、如由客户提供确定的阀门类型和型号时,客户应正确说明其型号的含义和要求,在供需双方理解一致的条件下签订合同。

4、期货、订货的客户请先来电函详细告诉所需的阀门型号、规格、数量以及交货时间、地点,并按总的30%预定金或全额货款及时汇入我厂账户, 其余货款待发货前汇入,以便及时安排发货。

售中服务:

守信合同,及时供货,随时保持与客户联系。

对特殊或复制的产品,我厂安排技术人员对用户进行产品使用、故障排除

售后服务:

1、“凯时网站”产品品质期为自出厂起12个月,实行三包服务(包退、包换、保修)。

2、产品在使用中我厂定期组织技术、质检人员进行访问,征询用户对产品质量、使用状况、改进意见等方面的反馈,
以便进一步提高产品质量。

3、对用户投诉质量问题,快速作出反应,售后服务人员在24-36小时(省外48小时)赶赴现场。

4、对售后服务,要求用户填写服务后的质量反馈信息表,并作出鉴定意见,以便提高“凯时网站”的服务质量。

声明

  1. 本文中所有文字、数据、图片均只适用于参考,电动矩形百叶式调节蝶阀性能参数、结构尺寸参数、价格等详情,请联系凯时网站,电话:4000-700-665。
  2. 若无说明,本文章均为原创,转载时请注明本文地址,谢谢合作!