JD745X多功能水泵控制阀
- 销售:021-32051999
- 销售:021-32050777
- 传真:021-66099555
详情介绍
- 产品介绍
- 服务承诺
- 订货流程
JD745X多功能水泵控制阀由主阀和调节阀及接管系统组成,阀体采用直流式阀体,主阀控制室为膜片式或活塞式的双控制室结构,控制室比一般水力控制阀增加了一个,增加了对主阀的控制功能,实现了对水泵出口的缓慢开启、全开、缓闭、截止等多功能控制,实现了一个阀门、一次调节对水泵出口的多功能控制。
本产品的接管系统采用调节阀控制,通过设定调节阀的开度,可方便实现需要的各项控制参数,如主阀的开启速度、缓闭速度等等。
工作原理
当水泵起动起后,水压作用于主阀阀盘下面和控制室下腔,此压力使主阀开启,控制室上腔的水经过调节阀B缓缓排到出口端,主阀缓缓开启。设定调节阀的开度可合适地主阀开启速度。当水泵停止工作后,进口端水压迅速下降,在自重、弹簧压力作用下快速关闭大部分开度,防止了水倒流余下的开度由控制室上腔的水压和下腔水压联合作用下缓缓关闭,关闭速度减慢形成了缓冲,防止压力剧增。
设定调节阀A、B的开度和开度比可合适的阀门启闭速度。
工作特点
1、防止水锤效果好,将缓开、止回速闭、缓闭等清理水锤的技术,防止开泵不锤和停泵倒流与水锤对供水管路和水泵的损害。
2、操作方便,无需为阀门另配电控系统,阀门随水泵的开启与停止自动并按顺序完成控制功能。通过设定调节阀开度可合适的控制参数。
3、阀体采用了全通道、直流式、流线型设计。水力损失小,节能效果好。
功能与用途
本阀门安装在水泵出口端,顺序实现缓慢开启、全开、速闭、缓闭等功能。
本产品用于高层建筑给水系统和其它给水系统的水泵出口管路上,防止和减弱水泵启闭时管线的水锤水击,防止水倒流保护水泵,维护管路。
主要技术参数
公称压力(Mpa) | 壳体试验压力(MPa) | 密封试验压力(MPa) | 调压范围(MPa) | 缓闭时间(S) | 低动作压力(MPa) | 适用介质 | 介质温度(℃) |
1.0 | 1.5 | 1.1 | 0.09-0.8 | 3-60 | ≥0.07 | 水 | 0-80 |
1.6 | 2.4 | 1.76 | 0.15-1.4 | ||||
2.5 | 3.75 | 2.75 | 0.2-2.0 |
主要零件材料
零件名称 | 零件材料 |
阀体 阀盖 | WCB |
阀座 阀盘 | 铜合金/2Cr13 |
密封圈 O型圈 | 丁腈橡胶 |
阀杆 | 2Cr13 |
弹簧 | 50CrVA |
缸套 活塞(活塞型) | 2Cr13 |
膜片(膜片型) | 夹织物丁腈橡胶 |
调节阀 球阀 | 铜合金 |
过滤器 | 不锈钢 |

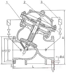
部件列表:
1、主阀2、流量调节阀3、过滤器
主要外形连接尺寸
DN | L | H | D | D1 | b | D2 | n-Φd | ||||||||||
mm | mm | PN1.0 | PN1.6 | PN2.5 | PN1.0 | PN1.6 | PN2.5 | PN1.0 | PN1.6 | PN2.5 | PN1.0 | PN1.6 | PN2.5 | PN1.0 | PN1.6 | PN2.5 | |
40 | 240 | 270 | 150 | 150 | 150 | 110 | 110 | 110 | 18 | 18 | 18 | 88 | 88 | 84 | 4-17.5 | 4-17.5 | 4-18 |
50 | 240 | 270 | 165 | 165 | 165 | 125 | 125 | 125 | 20 | 20 | 20 | 102 | 102 | 99 | 4-17.5 | 4-17.5 | 4-18 |
65 | 270 | 340 | 185 | 185 | 185 | 145 | 145 | 145 | 20 | 20 | 22 | 122 | 122 | 118 | 4-17.5 | 4-17.5 | 8-18 |
80 | 300 | 400 | 200 | 200 | 200 | 160 | 160 | 160 | 22 | 22 | 24 | 133 | 133 | 132 | 8-17.5 | 8-17.5 | 8-18 |
100 | 350 | 440 | 220 | 220 | 235 | 180 | 180 | 190 | 24 | 24 | 24 | 158 | 158 | 156 | 8-17.5 | 8-17.5 | 8-22 |
125 | 400 | 460 | 250 | 250 | 270 | 210 | 210 | 220 | 26 | 26 | 26 | 184 | 184 | 184 | 8-17.5 | 8-17.5 | 8-26 |
150 | 480 | 500 | 285 | 285 | 300 | 240 | 240 | 250 | 26 | 26 | 28 | 212 | 212 | 211 | 8-22 | 8-22 | 8-26 |
200 | 500 | 640 | 340 | 340 | 360 | 295 | 295 | 310 | 28 | 30 | 30 | 268 | 268 | 274 | 8-22 | 12-22 | 12-26 |
250 | 605 | 690 | 395 | 405 | 425 | 350 | 355 | 370 | 28 | 32 | 32 | 320 | 320 | 330 | 12-22 | 12-26 | 12-30 |
300 | 700 | 820 | 445 | 460 | 485 | 400 | 410 | 430 | 28 | 32 | 34 | 370 | 370 | 389 | 12-22 | 12-26 | 16-30 |
350 | 800 | 950 | 505 | 520 | 555 | 460 | 470 | 490 | 30 | 36 | 38 | 430 | 430 | 448 | 16-22 | 16-26 | 16-33 |
400 | 900 | 1400 | 565 | 580 | 620 | 515 | 525 | 550 | 32 | 38 | 40 | 482 | 482 | 503 | 16-26 | 16-30 | 16-36 |
450 | 1000 | 1580 | 615 | 640 | 670 | 565 | 585 | 600 | 32 | 40 | 42 | 532 | 550 | 548 | 20-26 | 20-30 | 20-36 |
500 | 1100 | 1600 | 670 | 715 | 730 | 620 | 650 | 660 | 34 | 42 | 44 | 585 | 585 | 609 | 20-26 | 20-33 | 20-36 |
600 | 1300 | 1815 | 780 | 840 | 845 | 725 | 770 | 770 | 36 | 48 | 46 | 685 | 685 | 720 | 20-30 | 20-36 | 20-39 |
700 | 1400 | 2040 | 895 | 910 | 960 | 840 | 840 | 845 | 40 | 54 | 50 | 800 | 800 | 820 | 24-30 | 24-36 | 24-42 |
800 | 1500 | 2350 | 1015 | 1025 | 1085 | 950 | 950 | 990 | 44 | 58 | 54 | 905 | 905 | 925 | 24-33 | 24-39 | 24-48 |
900 | 1700 | 2606 | 1115 | 1125 | 1185 | 1050 | 1050 | 1090 | 46 | 62 | 58 | 1005 | 1005 | 1028 | 28-33 | 28-39 | 28-48 |
1000 | 1900 | 2765 | 1230 | 1255 | 1320 | 1160 | 1170 | 1210 | 50 | 66 | 62 | 1110 | 1110 | 1140 | 28-36 | 28-42 | 28-56 |
1200 | 2050 | 2950 | 1455 | 1485 | 1530 | 1380 | 1390 | 1420 | 56 | 52 | 70 | 1330 | 1328 | 1350 | 32-39 | 32-48 | 32-55 |
1400 | 2200 | 3180 | 1675 | 1685 | 1755 | 1590 | 1590 | 1640 | 62 | 58 | 76 | 1530 | 1530 | 1560 | 36-42 | 36-48 | 36-60 |
1600 | 2400 | 3400 | 1915 | 1930 | 1955 | 1820 | 1820 | 1860 | 68 | 64 | 84 | 1750 | 1750 | 1780 | 40-48 | 40-55 | 40-60 |
安装示意图

良好的品质、优良的服务 凯时网站为你创造更多价值!
“凯时网站阀门”的期望,不断提升服务质量,精益求精,“真诚的服务”是“凯时网站”永恒的主题。“凯时网站”严格按照IS09001-2000 质量体系认证要求,质量严格把关, 责任到人,确保生产、销售、服务的健康运行。加强与用户沟通,竭诚为广大客户提供优良产品,贴心服务。特此我厂做出以下承诺:
产品标准:
产品严格按照中国GB、HG 标准和美国API等标准设计、制造、验收。密封面硬度达到国家规定要求,宽度超过国家标准。
售前服务:
产品介绍,技术交流,非标产品设计,疑难解答。
售中服务:
守信合同,及时供货,随时保持与客户联系。 对特殊或复制的产品,我厂安排技术人员对用户进行产品使用、故障排除
售后服务:
1、“凯时网站”牌产品品质期为自出厂起12个月,实行“三包”服务(包退、包换、保修)。
2、产品在使用中我厂定期组织技术、质检人员进行访问,征询用户对产品质量、 使用状况、改进意见等方面的反馈, 以便进一步提高产品质量。
3、对用户投诉质量问题,快速作出反应,售后服务人员在24-36小时(省外48小时)赶赴现场。
4、对售后服务,要求用户填写服务后的质量反馈信息表,并作出鉴定意见,以便提高凯时网站的服务质量。
1、客户如对产品有特殊要求,须在订货合同中提供以下说明:
a、结构长度;
b、连接形式;
c、公称直径、全通径、缩径、管道尺寸;
d、运行介质及温度、压力范围;
e、试验、检验标准及其他要求
2、本厂可根据客户特定要求配置各类驱动装置。
3、如由客户提供确定的阀门类型和型号时,客户应正确说明其型号的含义和要求,在供需双方理解一致的条件下签订合同。
4、期货、订货的客户请先来电函详细告诉所需的阀门型号、规格、数量以及交货时间、地点,并按总的30%预定金或全额货款及时汇入我厂帐户,其余货款待发货前汇入,以便及时安排发货。
订单流程:
1、客户采购清单传真至021-33872143,或来电咨询 021-33872141
2、收到客户采购清单,为客户提供阀门型号选型与报价(价格清单)。
3、具体商定:交货期、特殊要求等事宜。
订货须知:
1、客户如对产品有特殊要求,须在订货合同中提供以下说明:
|
|||||
|
|||||
2、本厂可根据客户特定要求配置各类驱动装置。
|
|||||
3、如由客户提供确定的阀门类型和型号时,客户应正确说明其型号的含义和要求,在供需双方理解一致的条件下签订合同。
|
|||||
4、期货、订货的客户请先来电函详细告诉所需的阀门型号、规格、数量以及交货时间、地点,并按总的30%预定金或全额货款及时汇入我厂账户, 其余货款待发货前汇入,以便及时安排发货。
|
售中服务:
守信合同,及时供货,随时保持与客户联系。
对特殊或复制的产品,我厂安排技术人员对用户进行产品使用、故障排除
售后服务:
1、“凯时网站”产品品质期为自出厂起12个月,实行“三包”服务(包退、包换、保修)。
2、产品在使用中我厂定期组织技术、质检人员进行访问,征询用户对产品质量、使用状况、改进意见等方面的反馈,
以便进一步提高产品质量。
3、对用户投诉质量问题,快速作出反应,售后服务人员在24-36小时(省外48小时)赶赴现场。
4、对售后服务,要求用户填写服务后的质量反馈信息表,并作出鉴定意见,以便提高“凯时网站”的服务质量。
声明 |
|