凯时网站

G41F46衬氟隔膜阀

G41F46衬氟隔膜阀
  • 销售:021-32051999
  • 销售:021-32050777
  • 传真:021-66099555

详情介绍

  • 产品介绍
  • 服务承诺
  • 订货流程

衬氟隔膜阀是一种特殊形式的、具有截断功能的阀门,其吝惜闭件由钢质阀瓣与软质材料(橡胶和氟塑料复合)制成的隔膜组成,并将阀体内腔与阀盖内腔隔开,以达到截断管内介质之目的。

结构特点
1.复合隔膜阀将阀体下部内腔与阀盖内腔隔开,并与之形成直流通道,使隔膜上部的阀杆、阀瓣等内件与介质完全隔离,省去填料密封结构,介质的内漏和外漏可同时避免;
2.利用FEP(Teflon)氟塑料与全成橡胶复合而成的隔膜的带有Teflon氟塑料衬里层的阀门,可适于除“熔融碱金属、元素氟”外的各种强腐蚀性介质。
3.做为执行元件的膜片,由于频繁的启闭,易产生疲劳断裂,应视工况、介质的特性,进行定期更换。
4.氟塑料的防腐性能及推荐使用温度风“阀门及管路附件用氟塑料衬里性能表”。

基本型号


手动

G41F3

直流式

G45F3

G41F46

G45F46

气动

Q641F3

电动

Q941F3

Q641F46

Q941F46


主要零部件材料表


零件名称

灰铸铁

铸钢

不锈耐酸铸钢

超低不锈钢耐酸铸钢

Z

C

P

R

P

R

阀体/阀盖

HT250

WCB

CF8

CF8M

CF3

CF3M

阀瓣/阀杆

35

1cr13

1Cr18Ni9Ti

1Cr18Ni12Mo2Ti

00cr18Ni10

00Cr17Ni14Mo2

衬里/阀座

PTFE(F4)、PCTFE(F3)、FEP(F46)、PFA(可溶性F4)

隔膜

FEP(F46)/CR(氯丁橡胶)、PFA(可溶性F4)/FPDM(乙丙橡胶)

支架

WCB

CF8

CF8

阀杆螺母

ZCuAI10Fe3

ZCuAI10Fe3

ZCuAI10Fe3

紧固螺栓

35

1Cr17Ni2

1Cr18Ni9Ti

螺母

45

0Cr18Ni9

0Cr18Ni9

手轮

WCB

WCB

WCB


技术规范


设计标准

GB12239

结构长度

JB1688/GB12221

法兰标准

JB/T79-94

GB9113.1-26

检验试验

GB/T13927

驱动方式

手动、电动、气动、
常闭型、常开型


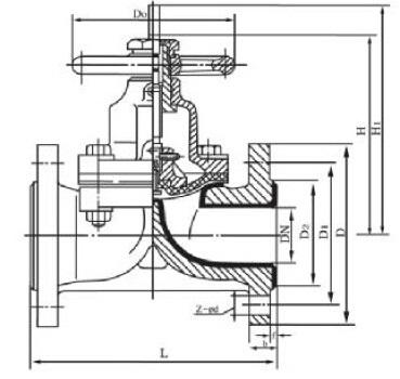
主要外形连接尺寸


公称通径

标准值

参考值

DN(mm)

NPS(inch)

L

D

D1

D2

f

b

Z-фd

d0

H

H1

WT(kg)

PN0.6MPa / PN1.0MPa

15

1/2

125

95

65

45

2

14

4-ф14

100

105

110

3.5

20

3/4

135

105

75

55

2

16

4-ф14

100

115

125

4

25

1

145

115

85

65

2

16

4-ф14

120

120

135

5.5

32

11/4

160

135

100

78

2

18

4-ф18

120

125

150

8

40

11/2

180

145

110

85

3

18

4-ф18

140

135

175

11

50

2

210

160

125

100

3

20

4-ф18

140

155

195

14

65

21/2

250

180

145

120

3

20

4-ф18

200

170

200

23

80

3

300

195

160

135

3

22

4-ф18

200

200

255

29

100

4

350

215

180

155

3

22

8-ф18

280

270

325

46

125

5

400

245

210

185

3

24

8-ф18

320

335

405

70

150

6

460

280

240

210

3

24

8-ф23

320

370

450

95

200

8

570

335

295

265

3

26

8-ф23

400

480

600

170

250

10

680

390

350

320

3

28

12-ф23

500

545

620

270

300

12

790

435

395

362

4

24

12-ф23

500

585

680

320

PN1.6MPa

15

1/2

130

95

65

45

2

14

4-ф14

120

110

115

4

20

3/4

150

105

75

55

2

16

4-ф14

120

120

130

5

25

1

160

115

85

65

2

16

4-ф14

140

125

140

6

32

11/4

180

135

100

78

2

18

4-ф18

140

130

155

9

40

11/2

200

145

110

85

3

18

4-ф18

160

140

180

12

50

2

230

160

125

100

3

20

4-ф18

160

160

200

15

65

21/2

290

180

145

120

3

20

4-ф18

200

175

205

24

80

3

310

195

160

135

3

22

8-ф18

200

205

260

30

100

4

350

215

180

155

3

24

8-ф18

280

275

330

48

125

5

400

245

210

185

3

26

8-ф18

320

340

410

75

150

6

480

280

240

210

3

28

8-ф23

320

375

460

105

200

8

600

335

295

265

3

30

12-ф23

400

485

605

182

250

10

730

405

355

320

3

32

12-ф25

500

550

625

295

300

12

850

460

410

375

4

34

12-ф25

500

590

685

345


良好的品质、优良的服务 凯时网站为你创造更多价值!

“凯时网站阀门”的期望,不断提升服务质量,精益求精,“真诚的服务”是“凯时网站”永恒的主题。“凯时网站”严格按照IS09001-2000 质量体系认证要求,质量严格把关, 责任到人,确保生产、销售、服务的健康运行。加强与用户沟通,竭诚为广大客户提供优良产品,贴心服务。特此我厂做出以下承诺:

产品标准:

产品严格按照中国GBHG 标准和美国API等标准设计、制造、验收。密封面硬度达到国家规定要求,宽度超过国家标准。

售前服务:

产品介绍,技术交流,非标产品设计,疑难解答。

售中服务:

守信合同,及时供货,随时保持与客户联系。 对特殊或复制的产品,我厂安排技术人员对用户进行产品使用、故障排除

售后服务:

1、“凯时网站”牌产品品质期为自出厂起12个月,实行“三包”服务(包退、包换、保修)。

2、产品在使用中我厂定期组织技术、质检人员进行访问,征询用户对产品质量、 使用状况、改进意见等方面的反馈, 以便进一步提高产品质量。

3、对用户投诉质量问题,快速作出反应,售后服务人员在24-36小时(省外48小时)赶赴现场。

4、对售后服务,要求用户填写服务后的质量反馈信息表,并作出鉴定意见,以便提高凯时网站的服务质量。

1、客户如对产品有特殊要求,须在订货合同中提供以下说明:

a、结构长度;

b、连接形式;

c、公称直径、全通径、缩径、管道尺寸;

d、运行介质及温度、压力范围;

e、试验、检验标准及其他要求

2、本厂可根据客户特定要求配置各类驱动装置。

3、如由客户提供确定的阀门类型和型号时,客户应正确说明其型号的含义和要求,在供需双方理解一致的条件下签订合同。

4、期货、订货的客户请先来电函详细告诉所需的阀门型号、规格、数量以及交货时间、地点,并按总的30%预定金或全额货款及时汇入我厂帐户,其余货款待发货前汇入,以便及时安排发货。

订单流程:

1、客户采购清单传真至021-33872143,或来电咨询 021-33872141

2、收到客户采购清单,为客户提供阀门型号选型与报价(价格清单)。

3、具体商定:交货期、特殊要求等事宜。

订货须知:

1、客户如对产品有特殊要求,须在订货合同中提供以下说明:

a、结构长度;

b、连接形式;

c、公称直径、全通径、缩径、管道尺寸;

d、运行介质及温度、压力范围;

e、试验、检验标准及其他要求

2、本厂可根据客户特定要求配置各类驱动装置。

3、如由客户提供确定的阀门类型和型号时,客户应正确说明其型号的含义和要求,在供需双方理解一致的条件下签订合同。

4、期货、订货的客户请先来电函详细告诉所需的阀门型号、规格、数量以及交货时间、地点,并按总的30%预定金或全额货款及时汇入我厂账户, 其余货款待发货前汇入,以便及时安排发货。

售中服务:

守信合同,及时供货,随时保持与客户联系。

对特殊或复制的产品,我厂安排技术人员对用户进行产品使用、故障排除

售后服务:

1、“凯时网站”产品品质期为自出厂起12个月,实行三包服务(包退、包换、保修)。

2、产品在使用中我厂定期组织技术、质检人员进行访问,征询用户对产品质量、使用状况、改进意见等方面的反馈,
以便进一步提高产品质量。

3、对用户投诉质量问题,快速作出反应,售后服务人员在24-36小时(省外48小时)赶赴现场。

4、对售后服务,要求用户填写服务后的质量反馈信息表,并作出鉴定意见,以便提高“凯时网站”的服务质量。

声明

  1. 本文中所有文字、数据、图片均只适用于参考,G41F46衬氟隔膜阀性能参数、结构尺寸参数、价格等详情,请联系凯时网站,电话:4000-700-665。
  2. 若无说明,本文章均为原创,转载时请注明本文地址,谢谢合作!