凯时网站

PZ73H手动刀型闸阀

PZ73H手动刀型闸阀
  • 销售:021-32051999
  • 销售:021-32050777
  • 传真:021-66099555

详情介绍

  • 产品介绍
  • 服务承诺
  • 订货流程

PZ73H手动刀闸阀采用对夹连接采用刀型闸板结构,也叫做刀型闸阀。安装距离短、重量轻适合长纤维、颗粒性介质。这种耐磨刀闸阀广泛应用于各种工业领域,特别是采矿、钢铁工业--用于煤炭、滤渣浆,净化装置--用于废水、泥浆、污物及带有悬浮物的澄清水,造纸工业--用于任何浓度纸浆、料水混合物,电站除灰--用于灰渣浆液等专业管道系统。

产品特点
1、结构简单、造型美观、全通径流道、流阻系数小。闸板提升时,同时将密封面上的粘物给刮除,自动清理了杂物;
2、不锈钢闸板可防止腐蚀引起的密封泄漏。整体不锈钢材质,防止了腐蚀破坏,使用寿命长;
3、可选用各种配管法兰标准及法兰密封面型式,还可选用手动、蜗轮传动、电动、气动、液动等各种驱动方式,满足用户不同需求。
执行标准

设计规范:GB/12234 DIN3356
法兰连接:ANSI Bl6.5 GB/T9113 JB/T79 DIN 2543-2545
试验与检验:GB/T 13927 DIN3230 API598
性能参数


基本型号

PZ73H

PZ73Y

PZ73F

工作压力(MPa)

1.6~2.5 Calss150

口径(mm)

DN50-DN2000 2″-80″

适用介质

水、油、气、醋酸类、硝酸类等其他介质

可选材料

阀体

WCB CF8 CF8M CF3 CF3M

闸板

WCB CF8 CF8M CF3 CF3M

阀杆

WCB CF8 CF8M CF3 CF3M

密封面

不锈钢 司太立合金 碳化钨 PTFE

填料

柔性石墨 PTFE


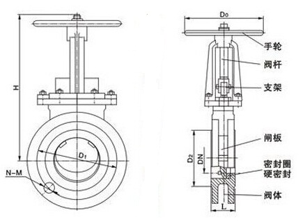
主要外形尺寸


MPa

DN

L

D

D1

D2

H

N-M

D0

W(Kg)

1.0

50

43

160

125

100

285

4-M16

180

8

65

46

180

145

120

298

4-M16

180

10

80

46

195

160

135

315

4-M16

220

12

100

52

215

180

155

365

8-M16

220

14

125

56

245

210

185

400

8-M16

230

22

150

56

280

240

210

475

8-M20

280

29

200

60

335

295

265

540

8-M20

360

38

250

68

390

350

320

630

12-M20

360

66

300

78

440

400

368

780

12-M20

400

100

350

78

500

460

428

885

16-M20

400

119

400

102

565

515

482

990

16-M22

400

195

450

114

615

565

532

1100

20-M22

530

285

500

127

670

620

585

1200

20-M22

530

389

600

154

780

725

685

1450

20-M27

600

529

700

165

895

840

800

1700

24-M27

600

790

800

190

1010

950

898

2000

24-M30

680

850

900

203

1110

1050

1005

2300

28-M30

680

900

1000

216

1220

1160

1115

2500

28-M30

700

1050

1200

254

1450

1380

1325

2800

32-M36

800

1300

1.6

50

43

160

125

99

285

4-M16

180

8.5

65

46

185

145

120

295

4-M16

180

10.7

80

46

200

160

135

315

8-M16

220

13

100

52

220

180

155

365

8-M16

220

15

125

56

250

210

185

400

8-M16

230

23.5

150

56

285

240

210

475

8-M20

280

31

200

60

340

295

265

540

12-M20

360

40.7

250

68

405

355

310

630

12-M22

360

70

300

78

460

410

375

780

12-M22

400

107

350

78

520

470

435

885

16-M22

400

129

400

102

580

525

485

990

16-M27

400

215

450

114

640

585

545

1100

20-M27

530

305

500

127

715

650

609

1200

20-M30

530

410

600

154

840

770

720

1450

20-M36

600

550

700

165

910

840

788

1700

24-M36

600

820

800

190

1025

950

898

2000

24-M36

680

950

900

203

1125

1050

998

2300

28-M36

680

1020

1000

216

1255

1170

1110

2500

28-M42

700

1120

1200

254

1485

1390

1325

2800

32-M48

800

1480


良好的品质、优良的服务 凯时网站为你创造更多价值!

“凯时网站阀门”的期望,不断提升服务质量,精益求精,“真诚的服务”是“凯时网站”永恒的主题。“凯时网站”严格按照IS09001-2000 质量体系认证要求,质量严格把关, 责任到人,确保生产、销售、服务的健康运行。加强与用户沟通,竭诚为广大客户提供优良产品,贴心服务。特此我厂做出以下承诺:

产品标准:

产品严格按照中国GBHG 标准和美国API等标准设计、制造、验收。密封面硬度达到国家规定要求,宽度超过国家标准。

售前服务:

产品介绍,技术交流,非标产品设计,疑难解答。

售中服务:

守信合同,及时供货,随时保持与客户联系。 对特殊或复制的产品,我厂安排技术人员对用户进行产品使用、故障排除

售后服务:

1、“凯时网站”牌产品品质期为自出厂起12个月,实行“三包”服务(包退、包换、保修)。

2、产品在使用中我厂定期组织技术、质检人员进行访问,征询用户对产品质量、 使用状况、改进意见等方面的反馈, 以便进一步提高产品质量。

3、对用户投诉质量问题,快速作出反应,售后服务人员在24-36小时(省外48小时)赶赴现场。

4、对售后服务,要求用户填写服务后的质量反馈信息表,并作出鉴定意见,以便提高凯时网站的服务质量。

1、客户如对产品有特殊要求,须在订货合同中提供以下说明:

a、结构长度;

b、连接形式;

c、公称直径、全通径、缩径、管道尺寸;

d、运行介质及温度、压力范围;

e、试验、检验标准及其他要求

2、本厂可根据客户特定要求配置各类驱动装置。

3、如由客户提供确定的阀门类型和型号时,客户应正确说明其型号的含义和要求,在供需双方理解一致的条件下签订合同。

4、期货、订货的客户请先来电函详细告诉所需的阀门型号、规格、数量以及交货时间、地点,并按总的30%预定金或全额货款及时汇入我厂帐户,其余货款待发货前汇入,以便及时安排发货。

订单流程:

1、客户采购清单传真至021-33872143,或来电咨询 021-33872141

2、收到客户采购清单,为客户提供阀门型号选型与报价(价格清单)。

3、具体商定:交货期、特殊要求等事宜。

订货须知:

1、客户如对产品有特殊要求,须在订货合同中提供以下说明:

a、结构长度;

b、连接形式;

c、公称直径、全通径、缩径、管道尺寸;

d、运行介质及温度、压力范围;

e、试验、检验标准及其他要求

2、本厂可根据客户特定要求配置各类驱动装置。

3、如由客户提供确定的阀门类型和型号时,客户应正确说明其型号的含义和要求,在供需双方理解一致的条件下签订合同。

4、期货、订货的客户请先来电函详细告诉所需的阀门型号、规格、数量以及交货时间、地点,并按总的30%预定金或全额货款及时汇入我厂账户, 其余货款待发货前汇入,以便及时安排发货。

售中服务:

守信合同,及时供货,随时保持与客户联系。

对特殊或复制的产品,我厂安排技术人员对用户进行产品使用、故障排除

售后服务:

1、“凯时网站”产品品质期为自出厂起12个月,实行三包服务(包退、包换、保修)。

2、产品在使用中我厂定期组织技术、质检人员进行访问,征询用户对产品质量、使用状况、改进意见等方面的反馈,
以便进一步提高产品质量。

3、对用户投诉质量问题,快速作出反应,售后服务人员在24-36小时(省外48小时)赶赴现场。

4、对售后服务,要求用户填写服务后的质量反馈信息表,并作出鉴定意见,以便提高“凯时网站”的服务质量。

声明

  1. 本文中所有文字、数据、图片均只适用于参考,PZ73H手动刀型闸阀性能参数、结构尺寸参数、价格等详情,请联系凯时网站,电话:4000-700-665。
  2. 若无说明,本文章均为原创,转载时请注明本文地址,谢谢合作!